Retail
Entertainment
Retail
Entertainment
(ASH) SoHyun Ahn

SS16 Sales Meeting (Retail)

- Ideation/Concept meeting  - Research & development; including 3D rendering and 2D technical drawing - Construction, project management 

You may also like

BUTTERO Seasonal Display (Retail)
2016
Buttero Seoul Store Launch (Retail)
2016
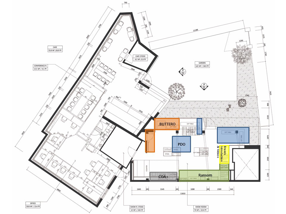
BUTTERO/PDO Store Launch (Retail)
2016
FAGUO,RANSOM,AKID,OELLO (RETAIL)
2016
WATCO Seasonal Window DIsplay (Retail)
2016
M&S Christmas 2018 Visualisation
2018
M&S Christmas 2017 Visualisation
2018
M&S Spring18 Visualisation
2018
M&S In-store Layout & Equipment Development
2018
M&S Autumn 18 Layout Visualisation
2018
↑Back to Top
Powered by Adobe Portfolio